PROJECTS NEWS CONTACT TEAM VIDEOS
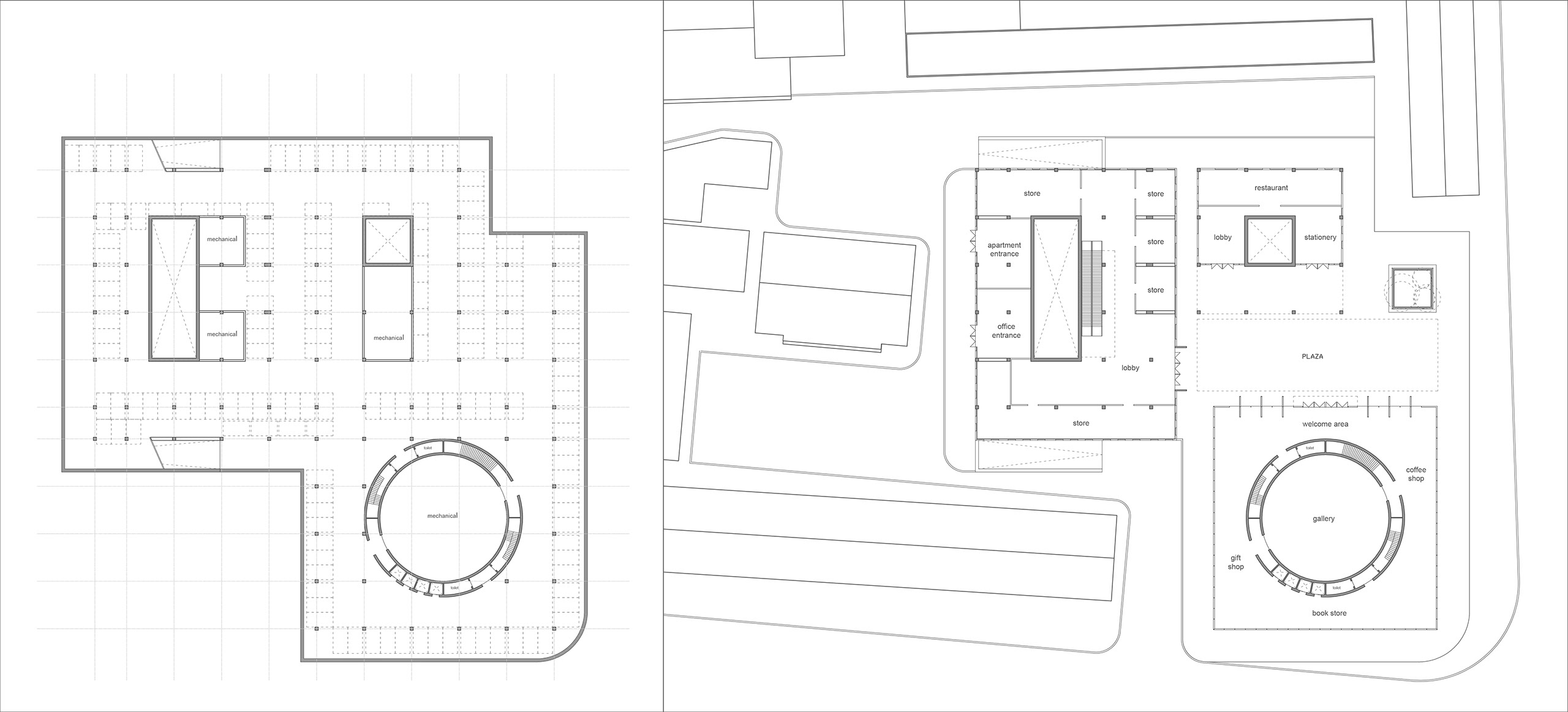
当代博物馆 乌兰巴托,蒙古国 方案设计与建筑立面 总建筑面积:87.000 m² 阶段:政府已审批 CONTEMPORARY MUSEUM Ulaanbaatar, Museum Conceptual design and building facade Total floor area: 87.000 m² Phase: Government Approval